Nhà cấp 4 4x15 2 phòng ngủ mang đến bài toán nan giải trong việc đảm bảo sự thông thoáng và chiếu sáng tự nhiên cho không gian. Tuy nhiên, Nội Thất Việt Decor tin rằng với việc nắm rõ nguyên tắc thiết kế, cũng như những lưu ý khi thi công, chắc chắn không gian sống của bạn sẽ trở nên thật ấn tượng.

Tổng hợp các mẫu nhà cấp 4 4x15 2 phòng ngủ đẹp nhất
Kích thước 4x15m tạo ra một thách thức lớn trong thiết kế nhà cấp 4, đòi hỏi kiến trúc sư phải tối ưu hóa không gian theo chiều sâu mà vẫn đảm bảo đủ hai phòng ngủ và các khu vực sinh hoạt chung. Giải pháp chính là việc tận dụng chiều cao và lựa chọn phong cách mái phù hợp để giải quyết vấn đề thiếu sáng và bí khí. Dưới đây là tổng hợp các mẫu nhà cấp 4 4x15 2 phòng ngủ được ưa chuộng, cũng như có tính thẩm mỹ cao nhất, đã giải quyết thành công bài toán không gian hẹp.
1. Mẫu nhà cấp 4 4x15 2 phòng ngủ mái Thái
Mẫu nhà mái Thái là lựa chọn kinh điển nhưng hiệu quả cho kích thước 4x15m, đặc biệt nhờ vào ưu điểm về chiều cao và khả năng thoát nhiệt. Cấu trúc mái dốc giúp tăng cường khả năng lưu thông khí nóng ra khỏi nhà, giảm thiểu cảm giác bí bách thường gặp ở nhà ống hẹp. Thiết kế mái Thái còn tạo ra một lớp đệm không khí dày, giúp chống nóng hiệu quả vào mùa hè, đồng thời tạo vẻ ngoài bề thế, thanh thoát, cân bằng lại cảm giác dài, hẹp của mặt tiền 4m.

Mẫu nhà cấp 4 4x15 2 phòng ngủ mái Thái
2. Mẫu nhà cấp 4 4x15 2 phòng ngủ mái Nhật
Mái Nhật (hoặc mái lùn) là xu hướng kiến trúc hiện đại, rất được ưa chuộng cho các mẫu nhà cấp 4 4x15. Đặc trưng của kiểu mái này là độ dốc nhẹ, mở rộng ra các phía, tạo cảm giác cân bằng, tinh tế và tối giản. Mặc dù thấp hơn mái Thái, nhưng mái Nhật vẫn đảm bảo khả năng thoát nước và dễ dàng tích hợp các hệ thống thu năng lượng. Phong cách này mang lại vẻ ngoài trẻ trung, hiện đại, nhấn mạnh vào sự mạch lạc, gọn gàng, rất phù hợp với gu thẩm mỹ tối giản của gia chủ trẻ tuổi.

Mẫu nhà cấp 4 4x15 2 phòng ngủ mái Nhật
3. Mẫu nhà cấp 4 4x15 2 phòng ngủ có gác lửng tiện nghi
Đây là giải pháp tối ưu hóa không gian theo chiều đứng hiệu quả nhất cho mẫu nhà có diện tích sàn hạn chế 4x15m. Việc bố trí gác lửng cho phép chuyển một phòng ngủ hoặc khu vực làm việc/thờ cúng lên tầng lửng, qua đó giải phóng diện tích sàn trệt để mở rộng khu vực sinh hoạt chung. Thiết kế này đặc biệt tiện nghi, hiện đại, giúp tăng thêm từ 30-50% diện tích sử dụng mà vẫn giữ nguyên kết cấu nhà cấp 4, là chiến lược thông minh để khắc phục chiều rộng 4m hẹp.

Mẫu nhà cấp 4 4x15 2 phòng ngủ có gác lửng tiện nghi
4. Mẫu nhà cấp 4 ngang 4m dài 15m phong cách hiện đại
Phong cách hiện đại cho mẫu nhà 4x15m tập trung vào việc loại bỏ các chi tiết trang trí thừa, nhấn mạnh vào hình khối cơ bản, sử dụng vật liệu thông minh (kính cường lực, lam chắn nắng). Thiết kế này ưu tiên sự thông thoáng thị giác bằng cách sử dụng vách kính lớn (ở mặt tiền và giếng trời) để đưa ánh sáng sâu vào bên trong. Sự thành công của mẫu hiện đại nằm ở việc bố trí ít nhất một giếng trời hoặc sân sau hợp lý, đảm bảo không khí lưu thông chéo và giải quyết triệt để vấn đề thiếu sáng ở khu vực giữa nhà dài 15m.

Mẫu nhà cấp 4 ngang 4m dài 15m phong cách hiện đại
Chi tiết bản vẽ nhà cấp 4 2 phòng ngủ 4x15: Tối ưu công năng
Bạn đang tìm kiếm bản vẽ thiết kế nhà cấp 4 tiện nghi trên diện tích 4x15m? Dưới đây là chi tiết bản vẽ với giải pháp bố trí 2 phòng ngủ khoa học, tập trung tối ưu hóa công năng và ánh sáng tự nhiên, biến không gian nhỏ hẹp thành tổ ấm đầy đủ tiện ích.
1. Phân tích các phương án bố trí mặt bằng công năng
Phần này sẽ "mổ xẻ" chi tiết từng phương án bố trí mặt bằng công năng. Thay vì chỉ đưa ra một bản vẽ, chúng tôi sẽ phân tích ưu nhược điểm của các cách sắp xếp khác nhau, giúp bạn thấy rõ giải pháp nào là tối ưu nhất cho không gian và nhu cầu sinh hoạt của gia đình bạn.
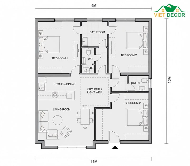
1.1. Bản vẽ mặt bằng công năng mẫu 1 (Phòng khách, bếp, 2 phòng ngủ, WC)
Mẫu 1 là bản vẽ mặt bằng cơ bản nhất, tập trung vào công năng cốt lõi, tuân thủ nghiêm ngặt nguyên tắc phân chia không gian hiệu quả trên chiều rộng 4m. Đây là sơ đồ mặt bằng được ưa chuộng nhất vì tính thực tế cao và khả năng áp dụng linh hoạt.
- - Phòng khách: Trong phạm vi chiều rộng 4m, Phòng khách phải được đặt ngay tại mặt tiền để tận dụng ánh sáng chính và tạo ấn tượng ban đầu. Kích thước lý tưởng thường dao động từ 3.5m đến 4.5m chiều sâu, chiếm khoảng 25% tổng diện tích sàn. Để khắc phục cảm giác hẹp, các kiến trúc sư thường áp dụng giải pháp Open Space (Không gian mở), loại bỏ hoàn toàn vách ngăn cứng với khu vực bếp/ăn, đồng thời ưu tiên sử dụng đồ nội thất đa năng, kích thước nhỏ gọn (sofa chữ I). Điều này giúp tối đa hóa chiều sâu thị giác, làm cho ngôi nhà cảm thấy lớn hơn diện tích thực tế.
- - Bếp, 2 phòng ngủ: Bếp và Khu vực ăn uống thường được bố trí tiếp nối hoặc nằm ở khu vực giữa nhà, tạo thành không gian đệm trước khi đến khu vực riêng tư. Vị trí này là chiến lược để kết hợp với Giếng Trời Trung Tâm, đảm bảo việc thoát mùi và đối lưu không khí hiệu quả trong quá trình nấu nướng.
- - Về 2 phòng ngủ, chúng luôn được đặt ở các vị trí đối diện nhau qua hành lang trung tâm hoặc dồn về phía cuối nhà để đảm bảo sự yên tĩnh tuyệt đối và riêng tư, tránh xa tiếng ồn từ mặt đường. Kích thước phòng ngủ tối thiểu cần đạt 9m² (ví dụ: 3m x 3m) để bố trí giường và tủ quần áo cơ bản trong chiều rộng 4m hạn chế. Việc sử dụng cửa lùa (sliding door) cho phòng ngủ là một giải pháp kiến trúc tiết kiệm diện tích hành lang.
- - WC (Nhà vệ sinh): Việc bố trí WC trong nhà ống 4x15m luôn ưu tiên tính Trung Tâm và Kín Đáo. WC thường được đặt cạnh Giếng Trời hoặc ngay dưới khu vực cầu thang (nếu có gác lửng) để tận dụng luồng khí tươi.

Bản vẽ mặt bằng công năng mẫu 1 (Phòng khách, bếp, 2 phòng ngủ, WC)
1.2. Bản vẽ mặt bằng công năng mẫu 2 (Bố trí thêm phòng thờ hoặc sân phơi)
Bản vẽ mẫu 2 này thể hiện chi tiết cách bố trí thêm phòng thờ trang trọng hoặc sân phơi tiện lợi. Đây là phương án mở rộng, giúp bạn dễ dàng chọn lựa và tích hợp công năng cần thiết nhất cho ngôi nhà của mình:
- - Phòng thờ hoặc không gian đa năng: Phòng thờ trong mẫu nhà 4x15m hiếm khi là một phòng riêng biệt mà thường được xử lý thành khu vực tích hợp, đòi hỏi sự tinh tế về mặt kiến trúc và phong thủy. Vị trí tối ưu nhất là khu vực đầu nhà, ngay trên trần phòng khách hoặc một góc kín đáo và cao nhất để đảm bảo tính tôn nghiêm. Bản vẽ mặt bằng thường chỉ định sử dụng vách ngăn CNC hoặc vách lam gỗ để tạo sự phân cách mang tính biểu tượng với không gian sinh hoạt chung. Việc này không chỉ giải quyết vấn đề tiết kiệm diện tích sàn mà còn đảm bảo bàn thờ treo được bố trí tại vị trí không bị nhìn thấy trực tiếp từ cửa chính, tuân thủ nghiêm ngặt nguyên tắc phong thủy.
- - Sân phơi và khu vực giặt: Đối với mẫu nhà 4x15m, khu vực giặt và sân phơi được bố trí chiến lược tại cuối nhà (kết hợp sân sau) hoặc ngay cạnh giếng trời trung tâm để đảm bảo khả năng đón nắng và đối lưu không khí tối ưu. Công năng của khu vực này đòi hỏi bản vẽ mặt bằng phải thể hiện rõ việc sử dụng mái che lấy sáng (ví dụ: polycarbonate) để bảo vệ khu vực giặt giũ khỏi mưa nhưng vẫn duy trì ánh nắng tự nhiên. Kích thước tối thiểu cần 1m đến 1.5m chiều rộng được dành riêng cho khu vực này để đảm bảo đủ không gian thao tác giặt giũ và khả năng lưu thông.

Bản vẽ mặt bằng công năng mẫu 2 (Bố trí thêm phòng thờ hoặc sân phơi)
1.3. Bản vẽ mặt bằng cho nhà có gác lửng (Cách bố trí cầu thang, công năng gác lửng)
Thiết kế nhà có gác lửng là giải pháp tối ưu diện tích hiệu quả. Khám phá ngay bản vẽ mặt bằng chi tiết này để biết cách bố trí cầu thang hợp lý, tiết kiệm không gian cũng như cách phân chia công năng trên gác lửng (như phòng ngủ, phòng làm việc) một cách thông minh, đảm bảo tiện nghi và thẩm mỹ cho ngôi nhà của bạn:
- - Cách bố trí cầu thang: Trong bản vẽ mặt bằng nhà 4x15m, việc bố trí cầu thang là một quyết định kiến trúc quan trọng nhất để tiết kiệm diện tích. Cầu thang lên gác lửng phải là cầu thang đơn (thẳng hoặc chữ L) với độ dốc vừa phải, được đặt áp sát tường tại khu vực giữa nhà. Vị trí lý tưởng là liền kề với giếng trời, vì nó tận dụng được khoảng không gian trống và giúp giảm thiểu cảm giác cầu thang chiếm dụng diện tích sinh hoạt chung. Thiết kế này giúp đảm bảo hành lang lưu thông ở tầng trệt rộng tối thiểu 1m, đồng thời không cản trở ánh sáng tự nhiên từ trên xuống.
- - Bố trí công năng: Các công năng chính bao gồm phòng ngủ phụ/thứ hai—đây là chức năng phổ biến nhất, giúp giải phóng hoàn toàn tầng trệt cho khu vực sinh hoạt chung. Ngoài ra, gác lửng là vị trí lý tưởng để đặt phòng thờ theo nguyên tắc phong thủy, đảm bảo sự tôn nghiêm và yên tĩnh tuyệt đối, hoặc dùng làm phòng làm việc/đọc sách, mang lại sự tập trung cao hơn, tách biệt khỏi các hoạt động thường ngày ở tầng trệt. Nhờ gác lửng, diện tích sử dụng của căn nhà 4x15m có thể tăng thêm 30-50%, biến sự hạn chế về diện tích sàn thành lợi thế chiều cao.

Bản vẽ mặt bằng cho nhà có gác lửng (Cách bố trí cầu thang, công năng gác lửng)
2. Chi tiết bản vẽ mặt đứng, mặt cắt
Sau khi quyết định xong mặt bằng công năng, việc nghiên cứu bản vẽ mặt đứng và mặt cắt là bắt buộc. Đây là hai tài liệu kỹ thuật quyết định tính thẩm mỹ ngoại thất và tính an toàn kết cấu bên trong của ngôi nhà. Đặc biệt với kích thước 4x15m hẹp, các bản vẽ này thể hiện rõ cách kiến trúc sư xử lý chiều cao và tỉ lệ để khắc phục cảm giác nhà bị "kéo dài" ra.
2.1. Giải thích ý nghĩa của bản vẽ mặt đứng (thể hiện kiến trúc mặt tiền)
Bản vẽ mặt đứng là cái nhìn trực diện, thể hiện kiến trúc, vật liệu, và thẩm mỹ của mặt tiền nhà 4m. Ý nghĩa cốt lõi của bản vẽ này là xác định hình khối tổng thể, độ cao tầng (so với cốt nền), vị trí cửa sổ, cửa chính và các chi tiết trang trí ngoại thất như lam che nắng hay vật liệu ốp lát. Bản vẽ mặt đứng là tài liệu quyết định tính thẩm mỹ và phong cách (hiện đại, mái Thái, mái Nhật). Nó giúp kiểm soát sự cân đối và tỉ lệ của ngôi nhà, đảm bảo mặt tiền 4m không bị nhàm chán mà vẫn thể hiện được sự bề thế và trang nhã.
2.3. Giải thích ý nghĩa bản vẽ mặt cắt (thể hiện chiều cao, kết cấu không gian bên trong)
Bản vẽ mặt cắt là tài liệu kỹ thuật quan trọng nhất, cắt dọc hoặc cắt ngang qua ngôi nhà để thể hiện kết cấu chịu lực (móng, cột, dầm, sàn) và chi tiết chiều cao thông thủy của các không gian. Mặt cắt giải thích rõ ràng mối quan hệ chiều cao giữa các phòng, đặc biệt quan trọng trong việc tính toán chiều cao tối ưu cho khu vực có giếng trời, gác lửng, hay các hệ thống kỹ thuật (đường ống, điện). Bản vẽ này đảm bảo tính an toàn kỹ thuật và độ chính xác trong việc thi công chiều cao thực tế, giúp gia chủ tránh được các sai sót về kết cấu và không gian nội thất.
Dự toán chi phí xây nhà cấp 4 4x15 2 phòng ngủ chi tiết
Việc xây dựng mẫu nhà cấp 4 4x15 2 phòng ngủ với diện tích sàn 60m² đòi hỏi sự dự toán chi phí chính xác để đảm bảo nguồn vốn. Chi phí xây dựng không cố định mà phụ thuộc vào nhiều yếu tố kỹ thuật, vật liệu và vị trí. Việc nắm rõ các phương pháp tính toán và các hạng mục chi tiêu sẽ giúp gia chủ kiểm soát ngân sách hiệu quả, tránh phát sinh ngoài dự kiến.
1. Các yếu tố ảnh hưởng đến chi phí xây dựng
Chi phí đầu tư cho nhà cấp 4 4x15 2 phòng ngủ được quyết định bởi bốn yếu tố cốt lõi, thường làm thay đổi đơn giá xây dựng trên cùng một diện tích:
- - Vị trí địa lý (nông thôn, thành thị): Chi phí nhân công và vận chuyển vật tư ở các thành phố lớn (thành thị) thường cao hơn đáng kể, có thể chênh lệch từ 10% đến 20% so với khu vực nông thôn do chi phí sinh hoạt và vận chuyển.
- - Thời điểm xây dựng: Xây nhà vào mùa mưa có thể làm tăng chi phí bảo quản vật liệu và kéo dài thời gian thi công, dẫn đến tăng chi phí quản lý dự án. Ngược lại, chi phí vật liệu (thép, xi măng) có thể biến động theo chu kỳ thị trường.
- - Chất lượng vật liệu hoàn thiện: Đây là yếu tố dễ biến đổi nhất, quyết định từ 25% đến 40% tổng chi phí. Việc lựa chọn gạch lát nền, thiết bị vệ sinh, sơn và cửa (từ phân khúc bình dân đến cao cấp) sẽ ảnh hưởng trực tiếp đến đơn giá cuối cùng.
- - Kiểu dáng mái (mái tôn, mái bằng, mái Thái, mái Nhật): Mái lợp tôn là phương án kinh tế nhất. Trong khi đó, mái Thái và mái Nhật có kết cấu khung phức tạp hơn, đòi hỏi kỹ thuật thi công cao và tốn vật liệu hơn, làm tăng chi phí phần mái từ 20% đến 40% so với mái bằng đơn giản.
2. Cách tính chi phí xây dựng dựa trên m2
Phương pháp phổ biến và dễ áp dụng nhất để dự toán chi phí xây dựng là dựa trên tổng diện tích sàn xây dựng (tính theo m²). Tổng diện tích này được tính bằng cách nhân diện tích sàn thực tế với các hệ số theo từng hạng mục (móng, sàn, mái).
2.1. Đơn giá xây dựng phần thô và nhân công hoàn thiện
Phần thô bao gồm toàn bộ kết cấu chịu lực (móng, dầm, sàn, cột) và tường gạch. Phần nhân công hoàn thiện là chi phí lắp đặt gạch, điện nước, sơn. Mức đơn giá này thường dao động từ 3.200.000 - 3.800.000 VNĐ/m² diện tích sàn. Việc này cho phép gia chủ tự chủ động mua sắm vật liệu hoàn thiện, kiểm soát chất lượng và thương hiệu theo ý muốn.
2.2. Đơn giá xây dựng trọn gói
Dịch vụ trọn gói bao gồm tất cả, từ vật liệu thô đến vật liệu hoàn thiện và nhân công. Đơn giá cho dịch vụ này thường dao động từ 5.000.000 - 7.500.000 VNĐ/m² diện tích sàn xây dựng, tùy thuộc vào mức độ vật liệu (Tiêu chuẩn, Khá, Cao cấp). Đây là phương án tiện lợi, tiết kiệm thời gian, phù hợp với những gia chủ không có nhiều kinh nghiệm giám sát xây dựng.
2.3. Bảng dự toán chi phí tham khảo cho nhà 60m2
Hiện tại, chi phí nhân công (phần thô) ước tính khoảng 1.200.000 VNĐ/m2, trong khi chi phí vật tư (bao gồm thô và hoàn thiện cơ bản) chiếm khoảng 4.000.000 VNĐ/m2. Việc nắm rõ các phương pháp tính toán và các hạng mục chi tiêu sẽ giúp gia chủ kiểm soát ngân sách hiệu quả, tránh phát sinh ngoài dự kiến.
| Hạng mục chi phí | Tỷ lệ ước tính | Giá trị ước tính (Tham khảo)/triệu VNĐ | Nội dung chi tiết và yếu tố ảnh hưởng |
|---|---|---|---|
| 1. Chi phí phần móng | 10% - 15% | 40 - 60 | Chi phí này tính theo hệ số móng (móng đơn 30%, móng băng 50% diện tích sàn). Đảm bảo kết cấu chịu lực và an toàn cho toàn bộ công trình. |
| 2. Chi phí phần khung và mái | 45% - 55% | 180 - 220 | Hạng mục cốt lõi (100% diện tích sàn). Chi phí cao nhất, biến động mạnh theo kiểu dáng mái (mái Thái/Nhật sẽ tăng chi phí). |
| 3. Chi phí hoàn thiện (Sơn, gạch, thiết bị...) | 25% - 30% | 100 - 120 | Chi phí vật liệu (gạch, sơn, cửa) và lắp đặt hệ thống điện nước. Quyết định thẩm mỹ, chịu ảnh hưởng lớn bởi chất lượng vật liệu được chọn. |
| 4. Chi phí nội thất cơ bản | 10% - 15% | 40 - 60 | Bao gồm tủ bếp, giường, tủ quần áo cơ bản. Đây là khoản tách biệt, nên được dự trù tối thiểu từ 60.000.000 VNĐ trở lên. |
Những lưu ý quan trọng khi thiết kế và thi công nhà cấp 4 4x15
Đây là phần tập trung vào các giải pháp kiến trúc và nguyên tắc thẩm mỹ để xử lý triệt để nhược điểm của mẫu nhà ống 4x15m—đặc biệt là vấn đề về ánh sáng, thông gió.
1. Về thiết kế và bố trí không gian
Để tối ưu hóa không gian khi chiều rộng ngôi nhà chỉ 4m, các quyết định về bố trí phải tuân thủ nguyên tắc tối đa hóa chiều sâu thị giác và lưu thông không khí. Dưới đây là ba yếu tố then chốt quyết định sự thành công của một căn nhà ống nhỏ:
1.1. Ưu tiên thiết kế không gian mở (phòng khách liền bếp)
Thiết kế không gian mở là giải pháp kiến trúc cốt lõi, giúp loại bỏ các bức tường ngăn cách giữa phòng khách và bếp, tăng cường chiều sâu thị giác, cũng như tối ưu hóa diện tích sinh hoạt chung. Nguyên tắc bố trí nội thất phải đặt sofa và tủ bếp dọc theo tường, duy trì lối đi tối thiểu 1m - 1.2m ở trung tâm để đảm bảo sự lưu thông mạch lạc.
1.2. Tận dụng ánh sáng tự nhiên với giếng trời hoặc cửa sổ lớn
Nhấn mạnh tầm quan trọng của giếng trời trung tâm hoặc giếng trời cuối nhà trong việc lấy sáng và đối lưu không khí cho các phòng ở giữa và cuối nhà (vấn đề cốt lõi của nhà ống). Việc bố trí các cửa sổ kính cường lực/cửa lùa lớn ở mặt tiền cũng như giếng trời giúp đưa ánh sáng vào sâu nhất có thể, tránh cảm giác nhà bị tối và bí bách.
1.3. Lựa chọn màu sơn và nội thất thông minh để tạo cảm giác rộng rãi
Để tạo cảm giác không gian nhà cấp 4 4x15 2 phòng ngủ rộng hơn, bạn nên sử dụng gam màu sáng (trắng, be, pastel) cho tường và trần, vì chúng phản xạ ánh sáng tối đa. Đồng thời, tư vấn về nội thất đa năng, kích thước nhỏ gọn, các bề mặt có độ bóng (gương, kính) để tạo cảm giác không gian được nhân đôi một cách hiệu quả.

Về thiết kế và bố trí không gian nhà cấp 4 4x15 2 phòng ngủ
2. Về yếu tố phong thủy cơ bản
Phong thủy đóng vai trò quan trọng trong việc đảm bảo sự hài hòa về mặt tâm linh và sinh hoạt. Với nhà ống, việc xử lý các yếu tố cơ bản như hướng và vị trí đặt bếp cần được tính toán cẩn thận.
2.1. Xác định hướng nhà và hướng cửa chính
Việc xác định hướng nhà và hướng cửa chính phải dựa trên nguyên tắc mệnh Trạch của gia chủ để hợp với tuổi. Đặc biệt, trong thiết kế nhà ống, cần cảnh báo về lỗi phong thủy cửa chính đối diện cửa hậu (xuyên tâm sát) và các giải pháp hóa giải cơ bản bằng cách sử dụng bình phong hoặc vách ngăn.
2.2. Lưu ý vị trí đặt bếp và phòng ngủ
Nhấn mạnh nguyên tắc bếp không đối diện nhà vệ sinh hoặc cửa phòng ngủ để tránh xung khắc. Đối với phòng ngủ, lưu ý tránh đặt giường thẳng với cửa ra vào hoặc sát tường WC, đảm bảo vị trí đầu giường vững chắc và kín đáo, hợp phong thủy.

Về yếu tố phong thủy cơ bản nhà cấp 4 4x15 2 phòng ngủ
3. Thủ tục pháp lý cần thiết trước khi xây nhà 60m2
Việc chuẩn bị đầy đủ hồ sơ pháp lý là bước bắt buộc để đảm bảo công trình được xây dựng hợp pháp và tránh các rủi ro bị xử phạt hành chính. Dưới đây là các đầu mục cần thiết phải kiểm tra.
3.1. Tìm hiểu về việc xin giấy phép xây dựng
Xin giấy phép xây dựng là bước pháp lý bắt buộc đối với nhà cấp 4 được xây dựng tại khu vực đô thị và bán đô thị trước khi khởi công. Nếu không có giấy phép, công trình có thể bị đình chỉ, cưỡng chế tháo dỡ và chịu phạt hành chính nặng. Các thông tin pháp lý cần tìm hiểu trước:
- - Cơ quan có thẩm quyền: Xác định cơ quan cấp phép tại địa phương (thường là Ủy ban Nhân dân cấp huyện/quận).
- - Thời gian xử lý: Nắm rõ thời gian quy định để cấp phép (thông thường là 15 ngày làm việc kể từ ngày nộp đủ hồ sơ hợp lệ).
- - Quy hoạch đất: Kiểm tra xem lô đất 4x15m có nằm trong vùng quy hoạch, lộ giới hay bị giới hạn chiều cao, số tầng hay không.
3.2. Chuẩn bị hồ sơ, bản vẽ cần thiết
Việc chuẩn bị hồ sơ kỹ thuật chính xác là yếu tố quyết định sự chấp thuận của cơ quan chức năng. Cụ thể, một số hồ sơ, giấy tờ mà bạn cần chuẩn bị đầy đủ gồm:
Hồ sơ xin giấy phép xây dựng nhà cấp 4 cơ bản bao gồm:
- - Đơn đề nghị cấp giấy phép xây dựng (theo mẫu quy định).
- - Bản sao công chứng Giấy tờ về quyền sử dụng đất (Sổ đỏ/Sổ hồng).
- - Bản vẽ thiết kế xây dựng của đơn vị tư vấn có thẩm quyền (bao gồm các bản vẽ mặt bằng, mặt đứng, mặt cắt, và móng).
- - Bản cam kết an toàn công trình liền kề (nếu cần).
Bên cạnh đó, bản vẽ kỹ thuật phải tuân thủ nghiêm ngặt các quy định xây dựng địa phương về mật độ và chỉ giới. Các quy chuẩn kỹ thuật bắt buộc phải tuân thủ:
- - Mật độ xây dựng tối đa: Xác định tỷ lệ diện tích xây dựng trên tổng diện tích đất cho nhà cấp 4 tại khu vực cụ thể. Việc này đảm bảo không gian thoáng, cây xanh theo quy định.
- - Chỉ giới xây dựng (Khoảng lùi): Đây là khoảng lùi bắt buộc so với ranh giới đất hoặc trục đường giao thông. Việc tuân thủ chính xác các chỉ giới này được thể hiện rõ ràng trên bản vẽ mặt đứng đã được cơ quan chức năng phê duyệt.
- - Bản vẽ mặt đứng: Bản vẽ này phải thể hiện rõ ràng và chính xác các chỉ giới xây dựng, chiều cao công trình, cao độ tầng và vị trí cửa so với các quy định, là căn cứ pháp lý quan trọng nhất để cơ quan chức năng phê duyệt.

Thủ tục pháp lý cần thiết trước khi xây nhà 60m2
Tham khảo ý tưởng thiết kế nội thất cho nhà cấp 4 60m2
Sau khi hoàn thành phần xây dựng và kết cấu, việc lựa chọn nội thất là bước cuối cùng quyết định sự tiện nghi và thẩm mỹ của nhà cấp 4 4x15 2 phòng ngủ. Với diện tích nhỏ, chúng ta phải áp dụng nguyên tắc đa năng hóa và tối giản hóa để loại bỏ vật dụng thừa, tối đa hóa không gian lưu trữ, cũng như tạo cảm giác rộng rãi, thoáng đãng nhất, đảm bảo tính thẩm mỹ, công năng sử dụng cao.
1. Nội thất phòng khách và bếp
Đây là khu vực sinh hoạt chung và thường được thiết kế không gian mở để tận dụng chiều dài của nhà ống. Việc bố trí nội thất cần ưu tiên sự gọn gàng và phân chia không gian linh hoạt bằng vật liệu cũng như màu sắc, không dùng tường ngăn:
- - Tối ưu hóa khu vực bếp: Nên chọn tủ bếp chữ I hoặc chữ L nhỏ gọn để tận dụng triệt để chiều dài của tường. Ưu tiên sử dụng các thiết bị âm tủ (bếp từ, lò nướng) để giữ bề mặt bếp luôn sạch sẽ, gọn gàng và liền mạch, giảm thiểu sự lộn xộn về thị giác. Bàn ăn nên là loại gấp gọn hoặc mở rộng khi cần, bố trí liền kề khu vực bếp.
- - Lựa chọn sofa và kệ tivi: Sử dụng sofa đơn giản, chữ I có kích thước vừa phải và sát tường. Kệ tivi nên là loại treo tường hoặc tủ kệ đa năng có nhiều ngăn kín để che giấu các vật dụng lặt vặt. Đây là nguyên tắc vàng để loại bỏ sự lộn xộn trong không gian hẹp.
- - Ánh sáng và phân khu: Sử dụng đèn downlight âm trần kết hợp với đèn thả nhẹ nhàng phía trên bàn ăn hoặc đèn sàn. Kỹ thuật chiếu sáng này không chỉ cung cấp đủ ánh sáng mà còn giúp phân chia không gian mở một cách tinh tế mà không cần dùng vách ngăn vật lý.

Nội thất phòng khách và bếp
2. Nội thất phòng ngủ master
Phòng ngủ chính (master) cần ưu tiên sự thoải mái tối đa cho gia chủ, nhưng vẫn phải tuân thủ nghiêm ngặt nguyên tắc tiết kiệm diện tích và tăng cường không gian lưu trữ theo chiều dọc:
- - Giải pháp lưu trữ thông minh (Tận dụng chiều dọc): Tuyệt đối ưu tiên sử dụng tủ quần áo âm tường sát trần. Tủ âm tường không chiếm diện tích sàn và kéo dài lên trần giúp tăng gấp đôi khả năng chứa đồ, là giải pháp tối ưu cho không gian hẹp.
- - Giường ngủ đa năng: Để tận dụng không gian chết dưới gầm giường, nên chọn các mẫu giường có ngăn kéo lớn hoặc giường có hệ thống nâng đỡ. Tránh các mẫu giường cầu kỳ, kích thước quá khổ, nên chọn đầu giường đơn giản, ít chi tiết để phòng trông rộng hơn.
- - Bàn trang điểm/Làm việc: Sử dụng các loại bàn treo tường hoặc bàn gập, chỉ mở ra khi sử dụng. Gương lớn không chỉ phục vụ cho việc trang điểm mà còn là một mẹo thiết kế phản chiếu giúp nhân đôi không gian phòng ngủ một cách hiệu quả, tạo chiều sâu.

Nội thất phòng ngủ master
3. Nội thất phòng ngủ nhỏ
Phòng ngủ phụ (hoặc phòng ngủ con cái) thường có diện tích khiêm tốn nhất, do đó, sự linh hoạt và tính đa chức năng phải được đặt lên hàng đầu để đáp ứng nhiều mục đích sử dụng:
- - Tận dụng không gian chiều cao: Giải pháp tối ưu nhất là sử dụng giường tầng nếu phòng dành cho trẻ em, hoặc giường gác lửng để tạo thêm không gian học tập hoặc làm việc bên dưới. Việc này giải phóng đáng kể diện tích sàn.
- - Nội thất có thể di chuyển/ẩn: Nếu phòng ngủ này được sử dụng đa năng (kết hợp phòng làm việc/phòng đọc sách), hãy cân nhắc giường gấp (Murphy bed) hoặc ghế sofa giường chất lượng cao. Khi không sử dụng, giường được gập lại, giải phóng toàn bộ diện tích sàn để phục vụ cho các hoạt động khác.
- - Thiết kế đơn sắc (Mono-color): Sử dụng màu sắc trung tính và đồng nhất cho cả tường và nội thất trong phòng ngủ nhỏ. Điều này giúp loại bỏ cảm giác chia cắt không gian, khiến căn phòng trông liền mạch và rộng hơn so với diện tích thực tế.

Nội thất phòng ngủ nhỏ
Mẫu nhà cấp 4 4x15 2 phòng ngủ tuy bị giới hạn về chiều ngang nhưng hoàn toàn có thể trở thành không gian sống lý tưởng nếu được thiết kế đúng cách. Trọng tâm không nằm ở diện tích lớn hay nhỏ, mà nằm ở cách tối ưu công năng – xử lý ánh sáng – tổ chức không gian thông minh.
Từ việc lựa chọn kiểu mái (Thái, Nhật), bố trí mặt bằng hợp lý, tận dụng gác lửng, đến giải pháp giếng trời, nội thất đa năng… tất cả đều là những “đòn bẩy” giúp biến nhược điểm thành lợi thế. Đồng thời, việc dự toán chi phí rõ ràng và tuân thủ pháp lý sẽ đảm bảo quá trình xây dựng diễn ra suôn sẻ, tiết kiệm và hiệu quả.
👉 Nói cách khác, một bản thiết kế tốt không chỉ giúp bạn có một ngôi nhà đẹp, mà còn giúp bạn tiết kiệm hàng trăm triệu chi phí sai lầm trong thi công.
Bạn đang có ý định xây dựng hoặc cải tạo nhà cấp 4 4x15 tại Tây Ninh nhưng:
- Chưa biết bố trí công năng sao cho hợp lý?
- Lo lắng nhà bị bí, thiếu sáng?
- Không kiểm soát được chi phí thi công?
- Cần một đơn vị thiết kế & thi công trọn gói, uy tín?
👉 Đừng tự “mò đường” một mình. Hãy để chuyên gia giúp bạn ngay từ đầu.
💡 Nội Thất Việt Decor cung cấp giải pháp trọn gói:
- Tư vấn thiết kế nội thất Tây Ninh chuẩn công năng – tối ưu diện tích
- Thi công nội thất Tây Ninh đúng bản vẽ – đúng ngân sách – đúng tiến độ
- Cá nhân hóa thiết kế theo nhu cầu thực tế của từng gia đình
📩 Liên hệ ngay hôm nay để nhận:
- Bản vẽ bố trí mặt bằng FREE theo diện tích đất
- Tư vấn phong cách thiết kế phù hợp ngân sách
- Báo giá chi tiết – minh bạch – không phát sinh
👉 Inbox / gọi ngay để được kiến trúc sư tư vấn 1:1 cho ngôi nhà của bạn!